Chất Liệu: Gỗ Gụ
Kích thước: thiết kế và theo yêu cầu
Sử Dụng: Phòng Thờ tư gia, thờ gia tiên, thờ tổ tiên, thờ phật...dòng họ, đình chùa nơi thờ cúng linh thiêng.
Giá Thành: Tùy theo kích thước, chất liệu gỗ, mẫu mã khách hàng đặt.
Tuổi Thọ: Dùng càng lâu năm càng có giá trị theo đồ cổ
Các Sản Phẩm Khác:
– Đồ Gốm Sứ Bát Tràng - Tượng Phật - Đồ Thờ Cúng - Thiết Kế Trang Trí Bàn Thờ
– Liên hệ mua cùng bàn thờ giảm 30%
– Thiết kế - Giường - Tủ - Kệ - Trang Trí Nội Thất Đồ Gỗ Giảm 15%
Lưu ý: để cho thuận tiện quý khách hàng vui gọi tổng đài và bên công ty sẽ có nhân viên kỹ thuật đến tận nơi thiết kế sau khi thiết kế và vẽ 3d [miễn phí] mới bắt đầu thi công hoàn thiện.
Trong tín ngưỡng dân gian Việt Nam, việc thờ cúng Thần Tài – Ông Địa từ lâu đã trở thành phong tục không thể thiếu. Đặc biệt là với các hộ kinh doanh, cửa hàng, văn phòng công ty hay gia đình mong cầu tài lộc. Việc chọn lựa bàn thờ không chỉ đòi hỏi tính thẩm mỹ mà còn cần đảm bảo các yếu tố phong thủy, tâm linh và độ bền theo thời gian. Hiểu được điều đó, Kiến Trúc Gỗ Đẹp tự hào giới thiệu sản phẩm Bàn Thờ Thần Tài Ông Địa được chế tác từ gỗ MDF cao cấp, thiết kế hiện đại, đa dạng màu sắc – phù hợp với mọi không gian và nhu cầu sử dụng.
Đây không chỉ là một không gian linh thiêng để tôn vinh tổ tiên và thực hiện lễ nghi, mà còn là một tác phẩm nghệ thuật độc đáo, tạo nên sự hòa quyện hoàn hảo giữa chất liệu gỗ gụ và phong cách hiện đại.

Phòng Thờ PT988
Bàn thờ Thần Tài Ông Địa của Gỗ Đẹp mang thiết kế tối ưu cho không gian nhỏ gọn nhưng vẫn giữ được sự trang trọng và linh thiêng. Với kích thước chuẩn phong thủy theo thước Lỗ Ban (410 x 480 x 680 mm), sản phẩm không chỉ hài hòa về mặt thẩm mỹ mà còn giúp thu hút vượng khí, may mắn và tài lộc đến cho gia chủ.
Phần thiết kế được tối giản một cách tinh tế, phù hợp với phong cách nội thất hiện đại nhưng vẫn giữ được nét truyền thống đặc trưng của không gian thờ tự. Các chi tiết như mái cong, khung vòm, bệ đỡ được chế tác khéo léo, tạo nên cảm giác trang nghiêm, sạch sẽ và gọn gàng cho khu vực đặt bàn thờ.

Phòng Thờ PT988 - Kiến Trúc Gỗ Đẹp
Khác với các loại gỗ tự nhiên thường có chi phí cao, bàn thờ sử dụng gỗ MDF cao cấp là giải pháp kinh tế hợp lý mà vẫn đảm bảo chất lượng. Gỗ MDF có bề mặt phẳng, dễ gia công, chống cong vênh, mối mọt và rất phù hợp với điều kiện khí hậu nóng ẩm tại Việt Nam. Đặc biệt, gỗ được xử lý kỹ trước khi sản xuất, đảm bảo an toàn trong quá trình sử dụng lâu dài.
Bên ngoài được phủ lớp sơn bóng mịn, chống ẩm và dễ lau chùi, giúp sản phẩm luôn giữ được vẻ đẹp như mới theo thời gian. Màu sắc có thể tùy chọn theo sở thích hoặc mệnh phong thủy của gia chủ: vàng nâu gỗ, sơn trắng, sơn giả cổ, sơn PU… tùy biến linh hoạt để phù hợp với từng không gian nội thất.

Phòng Thờ Nhà Liền Kề PT988
Một trong những điểm nổi bật mà khách hàng yêu thích ở sản phẩm của Gỗ Đẹp chính là chế độ bảo hành 12 tháng và bảo trì trọn đời. Bạn hoàn toàn yên tâm khi sử dụng sản phẩm, vì chúng tôi không chỉ bán hàng mà còn đồng hành cùng khách hàng trong suốt quá trình sử dụng. Bất kỳ khi nào cần sửa chữa, làm mới, thay linh kiện hoặc tư vấn phong thủy – đội ngũ Gỗ Đẹp luôn sẵn sàng hỗ trợ.

Thiết Kế Phòng Thờ Nhà Liền Kề PT988
Gỗ Gụ Quý Hiếm: Chất liệu gỗ gụ luôn được biết đến với vẻ đẹp và tính bền bỉ. Mẫu Thiết Kế Phòng Thờ PT988 được chế tác từ gỗ gụ quý hiếm, mang trong mình sự mềm mịn, màu sắc ấm áp và độ bóng tự nhiên đặc trưng. Gỗ gụ không chỉ là một vật liệu, mà còn là một di sản tự nhiên đáng trân trọng.
Phong Cách Hiện Đại: Thiết kế phòng thờ PT988 không chỉ làm mới và hiện đại hóa không gian thờ phật, mà còn tạo nên sự thoải mái và thân thiện. Với sự tinh tế trong lựa chọn chất liệu, sự tối giản trong thiết kế và những đường nét tinh tế, mẫu phòng thờ này là một sự kết hợp hoàn hảo giữa truyền thống và hiện đại.

Thiết Kế Phòng Thờ Nhà Liền Kề PT988 - Kiến Trúc Gỗ Đẹp
Bàn thờ Thần Tài Ông Địa phù hợp để đặt trong nhiều không gian như:
+ Cửa hàng kinh doanh, quầy thu ngân.
+ Văn phòng, công ty.
+ Chung cư, nhà riêng.
+ Gian hàng siêu thị, ki-ốt buôn bán.
Dù đặt ở đâu, sản phẩm đều mang lại sự an tâm về phong thủy, mang theo niềm tin về vượng tài – đắc lộc – bình an – may mắn cho chủ nhân.

Thiết Kế Phòng Thờ Nhà Liền Kề PT988 - Thanh lịch, sang trọng
Khi mua Bàn thờ Thần Tài Ông Địa, bạn sẽ được hưởng ngay các ưu đãi cực kỳ hấp dẫn:
+ Giảm 30% khi mua kèm Đồ Gốm Sứ Bát Tràng, bao gồm: bát nhang, đèn dầu, lọ hoa, kỷ chén, tượng Thần Tài – Ông Địa… giúp bạn dễ dàng tạo lập một bộ bàn thờ trọn gói, đồng bộ và trang trọng.
+ Giảm 15% cho các sản phẩm nội thất gỗ đi kèm như: giường, tủ, kệ, bàn trang trí…Giúp bạn tiết kiệm chi phí đáng kể khi hoàn thiện không gian sống hoặc làm việc của mình.

Thiết Kế Phòng Thờ Nhà Liền Kề PT988 - Sự lựa chọn hàng đầu
Nếu bạn đang tìm kiếm một mẫu thiết kế phòng thờ đẹp, trang nhã và đậm chất truyền thống, Thiết Kế Phòng Thờ Nhà Liền Kề Đẹp PT988 chắc chắn là sự lựa chọn hoàn hảo. Đây không chỉ là một không gian linh thiêng, mà còn là một tác phẩm nghệ thuật thể hiện tinh hoa của gỗ và sự kính trọng đối với tôn giáo.

Thiết Kế Phòng Thờ Nhà Liền Kề PT988 - Nét đẹp tâm linh
Với nhiều năm kinh nghiệm trong lĩnh vực sản xuất và thiết kế nội thất đồ gỗ, Gỗ Đẹp không chỉ là nơi bạn tìm thấy những sản phẩm chất lượng, mà còn là người bạn đồng hành đáng tin cậy trong hành trình hướng về tâm linh và cội nguồn. Từng mẫu bàn thờ được đội ngũ nghệ nhân chăm chút từ đường nét đến chất liệu. Mỗi sản phẩm đều là một tác phẩm nghệ thuật mang năng lượng tích cực cho không gian sống.

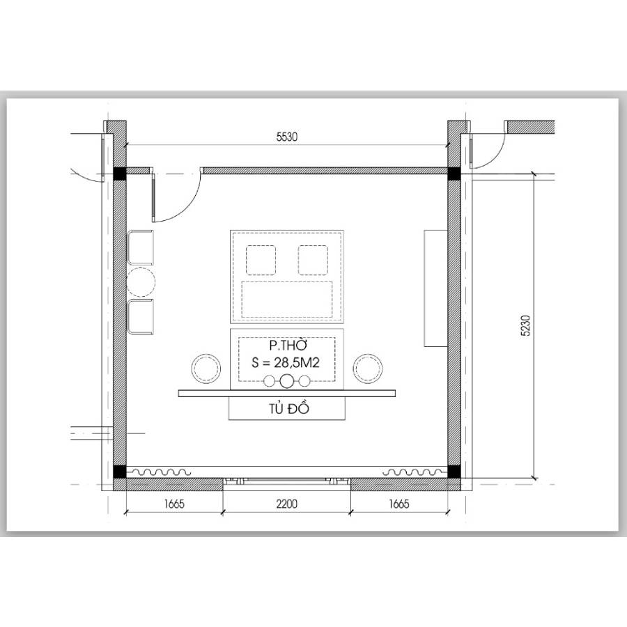
Bản Vẽ Thiết Kế Phòng Thờ Nhà Liền Kề PT988
Đừng chần chừ khi bạn đang muốn khởi đầu một công việc kinh doanh thuận lợi, hay chỉ đơn giản là cần một góc thờ tôn nghiêm trong nhà. Hãy liên hệ ngay với Gỗ Đẹp để được tư vấn miễn phí về kích thước, màu sắc, bố trí phong thủy và lựa chọn phụ kiện bàn thờ phù hợp. Chúng tôi cam kết mang đến sản phẩm chất lượng – giá trị – tâm linh đúng nghĩa cho mọi khách hàng. Hãy liên hệ với chúng tôi ngay hôm nay để biết thêm chi tiết và đặt hàng.
#PhòngThờ #ThiếtKếPhòngThờ #GỗGụ #PhongCáchHiệnĐại #NghệThuậtGỗ
Ms. Thái Nguyệt
SĐT: 0901 029 666
Ms. Thiên Mỹ
SĐT: 0961 92 93 95
Ms. Thanh Thanh
SĐT: 0908 193 000
Ms.Diễm Phương
SĐT: 038 333 53 58
Ms. Linh
SĐT: 0899 585 969
Ms. Kim Phụng
SĐT: 0903 272 886
Mr. Hoàng Phúc
SĐT: 0977 212 523
Ms. Thanh Tâm
SĐT: 0931 767 585
Kỹ Thuật Mr. Quang
SĐT: 0926 515 666
Mr. Quang Hạnh
SĐT: 038 646 7789
Mr. Quang Nhung
SĐT: 09642 888 93
Mr. Duy Tân
SĐT: 0931 738 999